Дом по адресу Новосибирск, Новосибирский район, за 6100000 р.

Адрес Новосибирск, Новосибирский район, село Ленинское, 7-я Благодатная улица
Цена 6 100 000 р.
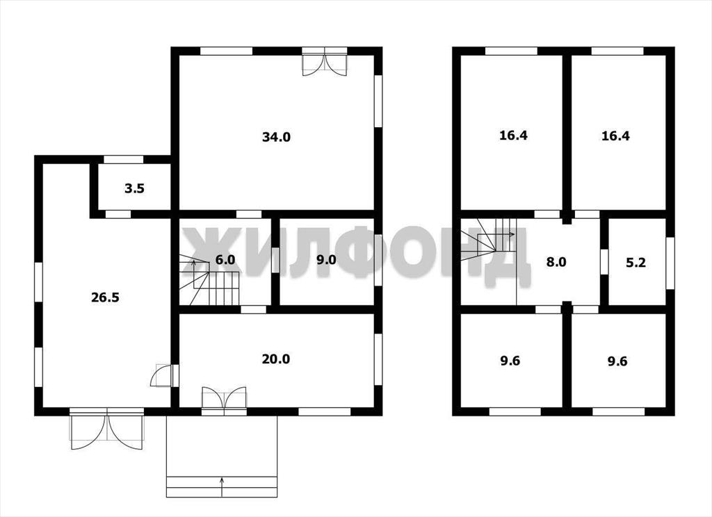
Площадь дома 181,4 м2, участка 5 м2
Дом по ул. Благодатная 7-я. Общей площадью: 181.40 кв.м. Срочная продажа! ! Новый дом в с. Ленинское из экологически чистых материалов, очень теплый и светлый для большой и дружной семьи. В доме просторная кухня-гостиная 34 м. кв. , 4 спальни, 2 санузла (на первом и втором этаже) , на входе большая прихожая 20 кв. м. , где можно разместить вместительную гардеробную, здесь же из дома вход в гараж. В доме сделана разводка электроэнергии, установлен электрокотёл, заведена вода (осталось только заключить договор с Говодоканалом) , есть возможность подключения дома к газовому отоплению. Местоположение с развитой инфраструктурой, множеством магазинов , пунктов выдачи маркетплейсов, остановка транспорта, спортивный комплекс Арка с бассейном, и конечно песчаный пляж и Обское водохранилище в 10 минутах ходьбы от дома. Этот дом идеально подойдет для большой семьи или для тех, кто ценит простор и комфорт. Не упустите возможность приобрести этот уютный и стильный дом по выгодной цене . Звоните прямо сейчас! Возможен обмен на вашу недвижимость. Возможна продажа в рассрочку. При звонке, пожалуйста, сообщите номер варианта - JV080541102214
Объявление № 23294049
Дата подачи:
6 октября 2025 г. 0:28
Дата обновления:
6 октября 2025 г. 0:28
Просмотров 12 Хотите продать быстрее?

Продавец
Мария Викторовна
Показать номер телефона
Пожаловаться
Комментарии:
Добавить